发布时间:2025年01月02日 [返回列表]
本文设计部分转载自微信公众号有方空间(ID:youfang502),已获授权。
项目地址:广东省佛山市顺德区
建筑面积:1800㎡
清水面积:约3350㎡
主持设计:陆轶辰
建设单位:华润置地、佛山市顺德区政府
设计单位:Link-Arc建筑事务所
总包单位:中国建筑第四工程局有限公司
清水施工:北京益汇达清水建筑工程有限公司
建筑摄影:田方方、存在建筑、木析AlexanDENG、郭诗雨

▲远眺湿地博物馆的第五立面 ©田方方
在广东佛山市顺德区繁忙的工业园和新建城市高楼间有一座郁郁葱葱的“鹭鸟天堂”,两万多只鹭鸟在这座生态岛屿里飞翔、繁衍、栖息。业主找到建筑师想要设计一栋湿地博物馆,集观鸟塔与展览馆功能于一体,旨在提高游客对湿地生态的认识,并提供独一无二的观鸟体验。

▲从湿地公园望向博物馆 ©存在建筑

▲从鹭岛望向湿地博物馆 ©存在建筑
1998年经营竹编脚手架生意的“鸟叔”冼铨辉租下200亩荒滩来栽种竹子,几年后脚手架生意冷落萧条,但这片郁郁葱葱的竹林却被鹭鸟们“爱上”,阴差阳错成为了鸟类的栖息地。为了保护鹭鸟,鸟叔在竹林外挖建了隔绝外界的护林河,防止外人偷猎;在树林外围租下鱼塘,在里面投放了60多万条鱼苗,为觅食的鹭鸟解决食物问题……数十年如一日的努力让这片城市绿洲成为了鸟类天堂,如今顺德政府将鹭鸟天堂的保护范围扩容了13倍至100公顷,修复水系、更新竹林,将这个区域重塑为云鹭湿地公园。

▲湿地公园的原生状态, 竹林、椰林、榕树 ©Link-Arc建筑事务所

▲设计草图 ©Link-Arc建筑事务所

▲从湿地公园望向博物馆 ©存在建筑
消隐的选址
湿地博物馆的基地坐落于云鹭湿地公园的西北角,毗邻鹭岛。场地被护林河一分为二,河道两侧生长着繁茂的水杉和榕树。业主与建筑师一致认同项目的选址要从保护鹭鸟的角度出发,施工过程要避免打扰鹭鸟,建筑体量尽量“消隐”甚至“消失”。最终的建筑选址退到了一排落羽杉林之后,让水杉林与大王椰林成为一道天然屏障,最小化建造过程对鹭鸟的影响,用谦逊的姿态与这片区域里的“原住民们”和谐共处。

▲场地模型 ©Link-Arc建筑事务所

▲场地模型 ©Link-Arc建筑事务所

▲从湿地公园望向博物馆 ©田方方
打工的鹭鸟
考察场地时建筑师登上了鸟叔搭建的简易观鸟塔,虽然构造简单粗暴,但是观鸟塔的高度能让游客的视野越过密林,在树冠之上感受到“长空去鸟没,落日孤云还”的自然奇观。鹭鸟在广东当地被戏称为“打工鸟”,它们会在清晨“上班”出门觅食,傍晚“下班”,在落日的余晖下回巢休憩。建筑师希望新建的湿地博物馆可以在节制建造的前提下,体现空间的高远与生命的辽阔。

▲生态系统研究 ©Link-Arc建筑事务所

▲远望云鹭湿地博物馆 ©存在建筑

▲“打工鹭鸟”的日常 ©陈志广
四个镜头
建筑形体由四根不同方向的清水混凝土筒体组成,像是在场地上水平旋转的四个“镜头”,躲在密林之后捕捉鹭鸟的生活瞬间。为了尽量减少建筑的占地面积,建筑师把筒体竖向叠加起来,形成一座四层的观鸟塔,最高的筒体只比南侧的水杉林梢略高。从鹭岛望向博物馆,建筑“消失”在了亚热带的密林中,只有一片通透的“镜头”躲在密林后,管窥鹭鸟。

▲旋转的四个镜头示意 ©Link-Arc建筑事务所

▲湿地博物馆鸟瞰 ©田方方

▲ 从南侧鹭岛望向湿地博物馆 ©田方方

▲从北侧望向湿地博物馆 ©田方方
四张取景框
根据场地的实际情况,博物馆的每根筒体都被旋转至最佳的观景方向,在内部空间形成了四个错落的“取景框”,一至四层分别望向亚热带雨林的树根、树干、树冠和树梢。游客逐层观景,可以在建筑内部的不同高度上望见鹭岛的树影婆娑与鹭鸟蹁跹。建筑内部空间简洁、纯净,通过具有方向感的空间指向,藉“取景框”为桥梁,建立起与周边鹭岛在时空上的联系。


▲从半空中望向四个取景框 ©田方方

▲从落羽杉林望向取景框 ©田方方

▲从二层露台望向取景框 ©田方方

▲ 荷花池上的取景框 ©田方方
与传统的展览建筑不同,这座建筑叠了4层,建筑师力图实现形态的相对高隐与视线的远达,前者体现为“身之所容”的空间高度,后者体现在“目之所瞩”的视线实验上。

▲ 建筑剖面与视线分析 ©Link-Arc建筑事务所

▲湿地博物馆西侧立面 ©田方方

▲ 湿地博物馆南侧立面 ©田方方
管窥自然
博物馆四个筒体相叠加的部分被“布尔差分”成一个竖向的三角形中庭,四层的体量在这里被串联在了一起;自然光通过顶部深梁的过滤变得柔和,均匀地洒向室内的每一个角落。中庭是建筑内部不同透视方向的共同“视点”,站在这里既可以看到不同透视角度相切得出的物理边界,同时视线也可以通过不同视角的筒体“管窥自然”——筒体尽端的取景窗,像是镶嵌在空间中几幅精心挑选的风景画。身处建筑之中,被柔和的自然光包裹着,人们透过取景窗可以感受到季节的流转与自然的变迁。

▲空间轴测示意图 ©Link-Arc建筑事务所

▲二层中庭空间 ©田方方

▲三层中庭空间 ©存在建筑

▲四层中庭空间 ©田方方

▲天光中庭 ©存在建筑
散点透视
建筑采用箱型混凝土结构,每个筒体的侧墙、顶板和底板共同作用,提供整体承重支撑。整个建筑中没有一根柱子,盒子的悬挑端都挂在三角形的核心筒上受力。

▲从大王椰树下望向博物馆 ©存在建筑

▲清水混凝土悬挑 ©田方方
筒体结构的布置约束了建筑内部东西向的视野,同时在建筑南北向呈现了类似于散点透视的内部构图;具有方向感的空间指向把游客的注意力引导向南侧的热带雨林与鹭岛,景观的取舍之间,体现了“远近取与”的空间视角。

▲湿地展廊 ©田方方

▲一层室内空间 ©田方方

▲北侧中庭楼梯 ©田方方

▲首层书吧空间 ©田方方
松木混凝土
混凝土的结构形式自然而然地引出了清水混凝土的建筑做法,建筑师希望通过“建构合一”的筑造过程,实现更为真实、自然的建造效果。外立面采用现浇松木模混凝土,松木的细腻纹理赋予了外墙自然的质感,与周围的亚热带雨林遥相呼应。

▲施工过程 ©Link-Arc建筑事务所

▲材质细节 ©存在建筑


▲混凝土质感 ©木析AlexanDENG
白天的混凝土墙面像一幅干净的画布,安静地接受自然在它上面作画,树影水光在画布上随着日照,在一天之内不断变化。

▲ 细节实景 ©郭诗雨
生态保护
为了不破坏湿地环境,在对现有的560棵树木进行测绘后,建筑师仔细确定了建筑的位置,缩小建筑的占地面积,然后旋转了每一层的建筑体量——在减少砍伐原生树木的同时,确保建筑可以捕捉到良好的观鸟视野;为了保护鹭鸟,建筑师希望在这个项目中减少玻璃的使用,只在密林包围的首层设置了节制的水平玻璃窗,二层以上只在几个最佳的观景点设置了取景窗,并未过度占用周边的湿地景观;建筑屋面覆盖了荷花池,生态水景弱化了建筑在第五立面上的存在感。

▲ 从落羽杉林望向博物馆 ©田方方

▲ 博物馆入口 ©存在建筑

▲透过密林的博物馆一角 ©存在建筑

▲透过密林看向展廊 ©郭诗雨
观鹭之“器”
游客秋日登临观鹭,远望顺德天际线,雨林、鹭岛、湿地、沙洲、城市,视角由近及远,心理空间逐渐投射至远方。虽然建筑选址被隐藏在了一片热带雨林之后,“自找”的局促总图关系背后是建筑师对“高”与“远”的另一种思考:“高”是一种生命的追求,登临观鹭的空间叙事以层层叠加的形式体现在空间中;“远”是一种生命的展开,经过约束后的“取景器”通过有目的性的空间指向,将游客的注意力投射到更远处,从而引发对另一种生命的关怀与关照。

▲远眺博物馆 ©田方方

▲第五立面 ©田方方
模型照片 ▽



▲©Link-Arc建筑事务所
设计图纸 ▽

▲总平面图 ©Link-Arc建筑事务所

▲一层平面图 ©Link-Arc建筑事务所

▲二层平面图 ©Link-Arc建筑事务所

▲三层平面图 ©Link-Arc建筑事务所

▲四层平面图 ©Link-Arc建筑事务所


▲剖面图 ©Link-Arc建筑事务所

▲墙身大样剖面详图 ©Link-Arc建筑事务所
样板实施
#01、样板选型
该项目选择了项目取景窗,玻璃幕墙,窗洞位置作为样板实施。





#02、小型样板颜色选型
甲方及设计对小样进行多次木纹纹路选型及颜色确定。

▲小型样板试块
#03、样板工艺
木纹模板排版设计原则
木纹模板排版设计原则及模板选型:
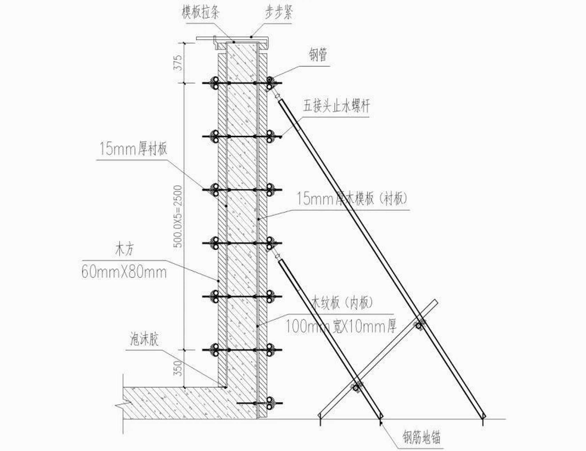
模板拼缝痕迹具有无规律性,表面平整、颜色均匀一致;拼接缝根据设计交底拼装,遵循自然细腻的质感。清水木纹面选用1220mm×2440mm×15mm优质清水衬板+100mm×4000mm×10mm优质木纹肌理面板;清水墙背面采用1220mm×2440mm×15mm优质清水单层模板,木纹板的最大长度为4000mm,最小500mm,木纹板宽为100mm,厚为10mm。表面木纹排版为随机排版。深化排版图螺栓孔间距为600㎜×500㎜。

#04、样板工艺
模板加固体系
加固体系选择:
主背楞:采用φ48钢管进行连接
次背楞:采用40X80㎜木方

▲加固俯视平面图

▲加固侧视图
#05、样板工艺
样板模板施工步骤
1、单侧模板定位钢管架搭设
根据现场放线确定墙体结构边线,搭设水平定位钢管(过程中应注意避开横向对拉螺杆位置),定位钢管距结构边缘距离需退开木纹面板、衬板、横、竖向加固体系厚度。保证墙体结构尺寸精确度。窗洞口四周布置加强钢筋。

▲样板钢管架搭设
2、竖向次背楞及衬板安装
定位钢管搭设完毕后,使用铁丝通过方木绑扎固定于钢管上,安装间距200mm,衬板通过铁钉与木方固定.衬板背面拼缝均使用3cmX6cm连接片连接固定.安装间距约30cm-40cm,保证衬板拼缝平整度。

3、木纹板安装
木纹板加工过程中两端需开设子母槽,气枪钉从槽口内斜射固定于衬板上。槽口内部应对枪钉端头留出一定空间保证拼缝密实。
木纹板安装完毕后根据深化设计排版尺寸使用φ18mm开孔器进行螺栓孔开眼,螺栓孔位置应处于木纹板块中间部位,不得贴边或开设在拼缝处,开设方向从木纹板向外。随后安装清水堵头。

▲木纹板字母槽拼接及装订示意
1-衬板;2-枪钉;3-木纹板;4-子母槽

▲木纹板横向尺寸排版图

▲现场木纹板安装

4、钢筋绑扎
控制保护层厚度不得低于30mm,间距为600mm,呈梅花形布置。所有扎丝统一向内弯折,箍筋安装应垂直均匀下放,不得生掰硬套,防止划伤面板。在满足条件情况下柱子钢筋需适当避开穿墙螺杆位置,钢筋绑扎完成后于安装五段式止水螺杆。

▲扎丝绑扎及塑料卡环放置图
5、合模及体系加固
安装前需对钢筋进行检查、验收,保证无扎丝外漏,保护层符合要求,墙体内侧无积水、垃圾、遗落钢筋、扎丝等杂物。

6、混凝土塌落度检查

▲塌落度检查
#06、样板工艺
样板模板细部节点
1. 阴阳角处理
本工程清水混凝土墙体阴阳角部位采用定型加固件,衬板与木纹板压头搭接内侧使用角码连接保证稳固,木纹板端头搭接结合处需贴上双面胶条,以防漏浆。详见下图所示:

2. 门窗洞口模板加固处理
门窗两侧采用墙体端部加固方式,门窗洞顶部及底部采用顶托配合木方加固,窗台模板需预留排气口;顶部配合直通型对拉螺栓对拉,保证洞口顶部不变形。门窗内侧预留企口采用双层模板条。

1-1剖面图
1-阴角通长角铁;2-16mm自攻螺丝钉;3-清水覆塑模板;4-60mm×80mm方木;5-次背楞
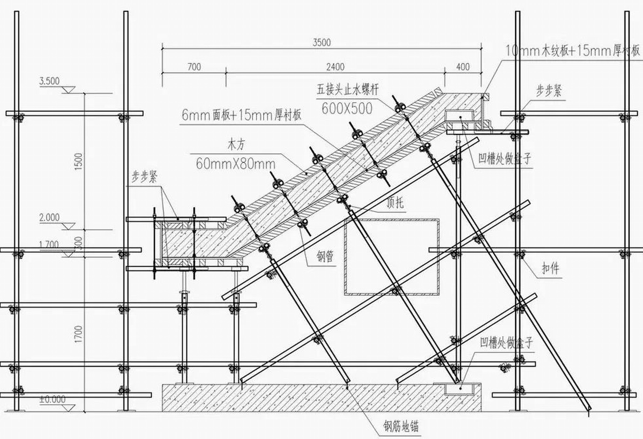
3. 斜板加固节点
斜板厚度为254mm,斜板底部为清水面,模板采用双层模板,采用6mm面板+15mm衬板,加固体系采用次背楞木方+主背楞钢管,斜板下部加一道齐斜板横向木方,控制其斜板的平整度;对拉穿板螺栓间距约600mm,并采用步步紧对于侧面模板进行加固。

4. 斜板振捣浇筑节点
此样板带有斜板及水平板,斜板与水平板相连接,为方便混凝土浇筑及下振捣棒,需要在斜板及水平板上的模板开100X100mm的振捣孔,斜板混凝土的振捣图见下图。

▲斜板振捣浇筑节点
5. 混凝土接高节点
已浇筑的混凝土底板,在做上部墙体时,采用新板包老墙的原则,新板往下挪出一个螺栓孔位,并用螺杆固定,加固方式见下图。

6. 墙端加固节点
墙端采用木方加钢管的加固体系进行加固,并采用将螺杆焊接在钢管上的形式,将侧面的钢管进行拉接,加固方式见下图。

7. 墙体竖向剖面加固节点
墙体采用木方与钢管的加固体系进行加固,顶部采用步步紧加固,并放置模板拉条,加固方式见下图。

▲墙体竖向剖面加固节点
8、样板成型效果

▲ 样板成型效果
如果说云鹭湿地公园是城市的自然绿洲,那么隐藏于湿地公园之中的云鹭湿地博物馆则是这片绿洲上的一颗璀璨明珠。不仅肩负着展示公园生态魅力的使命,更以卓越的建筑风格,成为顺德乃至湾区的艺术新地标。为当地民众供了一个高品质的休闲空间,促进了城市绿色生态与人文文化的深度融合,构成了佛山顺德发展的新名片和多元化绿色生活的新风尚。
完整项目信息
项目名称:顺德云鹭湿地博物馆
项目地点:中国广东顺德
项目类型:展厅、博物馆
建筑面积:1,800平方米
业主:华润置地、佛山市顺德区政府
设计时间:2023年9月至2024年4月
建成时间:2024年9月
建筑设计:Link-Arc建筑事务所
主持建筑师:陆轶辰
项目负责人:郭诗雨
项目团队:周睿、张嘉琦、钟臻炜、刘子达、程竞斌、Luis Ausin、杨灵运、綦峰、徐嘉瑞、华心宁、Sarah Kenney、李紫石、Isabella Chong
设计范围:建筑设计、室内概念设计、景观概念设计
执行建筑师/结构机电设计:奥意建筑工程设计有限公司
结构顾问:深圳市行健工程设计咨询有限公司
幕墙顾问:沈阳正祥装饰设计有限公司
景观设计:承迹景观
室内设计:于舍设计
灯光照明顾问: 上海格锐照明设计有限公司
结构类型:箱型混凝土结构主要
建筑材料:松木模清水混凝土、玻璃幕墙、不锈钢板
主要室内材料:人造石、肌理涂料、木饰面
施工方:中国建筑第四工程局有限公司、北京益汇达清水建筑工程有限公司
摄影:田方方、存在建筑-建筑摄影、木析AlexanDENG、郭诗雨
部分资料来源:Link-Arc建筑事务所、有方空间